Hledáte klidné bydlení pro rodinu nedaleko Prahy?
Světlý mezonetový byt 4+kk s menší zahradou, jen necelých 18km od centra hlavního města, jistě splní požadavky vaší rodiny pro komfortní bydlení.
V prodeji krásný mezonetový byt 4+kk o užitné ploše 98,84 m2 + 2,8 m2 balkon + udržovaná zahrada s venkovním posezením.
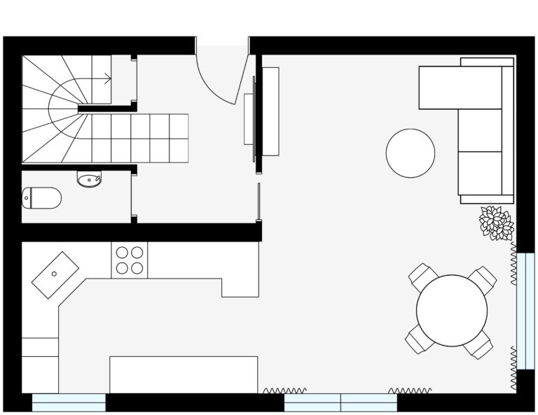
Byt je rozdělen do dvou pater (viz půdorysy ve fotogalerii): v 1.NP se nachází předsíň (8,80 m2) se schodištěm do 2. NP, toaleta (1,62 m2), komora pod schodištěm (2,3 m2), obývací pokoj (22,44 m2) s kompletně vybaveným kuchyňským koutem (9,60 m2). Z obývacího pokoje je vstup na terasu do udržované zahrady s příjemným posezením a s kolnou pro uložení zahradního a sportovního náčiní.
Ve 2.NP se nachází chodba se schodištěm (7,21 m2), pokoj s vestavěnou skříní (11,38 m2), pokoj (13,33 m2), ložnice s vestavěnou skříní (17,83 m2) a vstupem na balkon (2,80 m2) a koupelna s vanou a toaletou (6,44 m2).
Je také možné zřídit výlez na půdu, kterou lze využít jako další úložný prostor.
Ohřev vody a vytápění nemovitosti je řešeno plynovým kotlem.
K bytu náleží jedno parkovací stání přímo před domem.
Dům, ve kterém jsou pouze tři bytové jednotky se nachází v klidné části, pouze 6min chůze od centra obce Velké Přílepy.
Velké Přílepy jsou vyhledávanou rezidenční lokalitou se skvělou dopravní dostupností do Prahy (18km), Kladna (15km) či Kralup nad Vltavou (11km). Spojení s Prahou či Kladnem je zajištěno autobusovými linkami PID 316 (Bořislavka) a 350 (Dejvická/Kladno).
V obci je kompletní občanská vybavenost (Pošta, MŠ, ZŠ, Obchod, Restaurace atd.).
V okolí najdete spoustu možností pro volnočasové aktivity jako jízdárny, koupaliště s pláží, Snail driving range, Pivovar atd. Dále je zde spousta zeleně – nedaleko je např. vyhlídka Skalka nebo vyhlášená zřícenina hradu Okoř.



































